* Docs are Up *

It's not great; but it has improved markedly since the last iteration:


View attachment 399452


View attachment 399453

View attachment 399449

View attachment 399450
View attachment 399451
The tower is truly uninspiring ... but inoffensive. The base is the best this site has had so far. That has more to do with the city insisting on sidewalk setbacks--and thank jebus for that since this corner is so tight for pedestrians.
How much money did those fools lose by kicking their tenants out before they got approval. Unfortunately they probably still made money selling the property but I'm happy with the city that they weren't swayed by such dirty tactics.
 
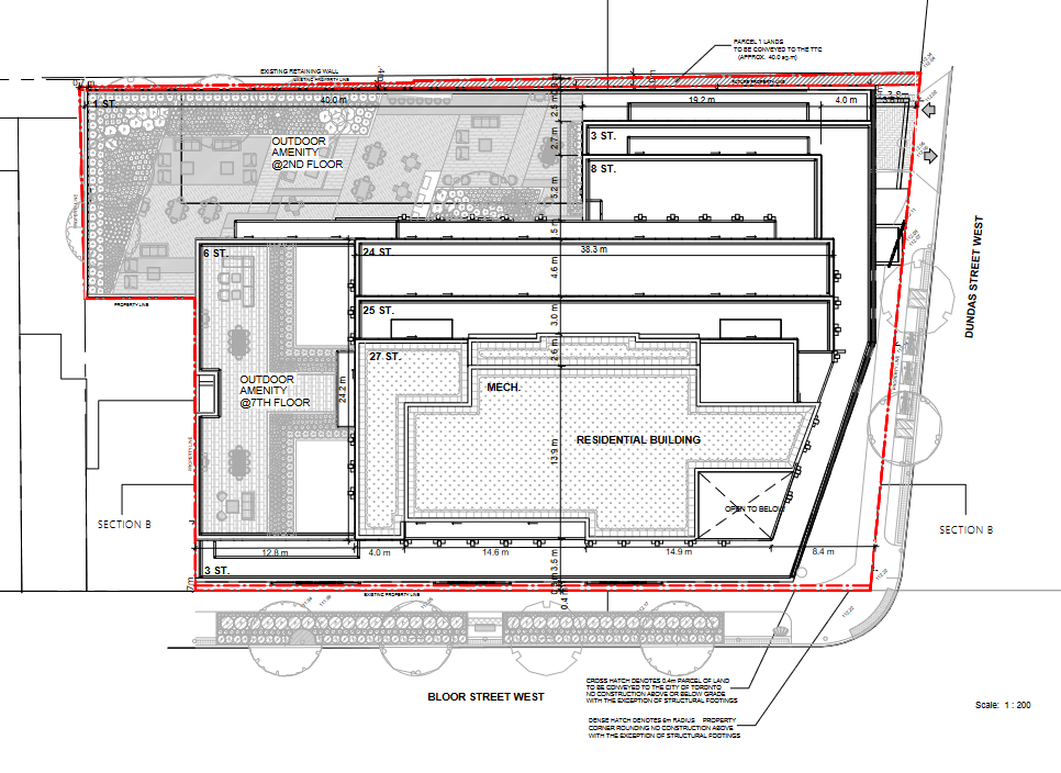
New renderings are updated in the database! The project information is updated too. The overall building height changed from 91.65m to 91.90m. The building storey count remains the same at 27 storeys. The total unit count decreased from 353 units to 354 units. Finally, the total parking spaces remain the same at 93 parking spaces.

The rendering is taken from the architectural plan via Site Plan Approval:

PLN - Architectural Plans - APR 26  2022-602.jpg


PLN - Architectural Plans - APR 26  2022-605.jpg
 
After the horror of what they presented in versions 2-4, I'll take this. It's a missed opportunity to build something unique and beautiful that could come to define these developers though.
 
I dunno...it look's more like a 90's solution to that corner that begs for something more sophisticated.
 
...I said something more sophisticated, not sophistry. >.<
 
How many different iterations of crap are we going to go through with Trinity Group on?

They clearly have no idea what materials they want to use, which doesnt bode well for the end piece of trash we're going to get from them.
 



Aerial-Render-Cropped.jpg
 
What’s the latest update on this site , building is still boarded up and bar is still running . No demolition plans.
 

Back
Top