Northern Light
Superstar
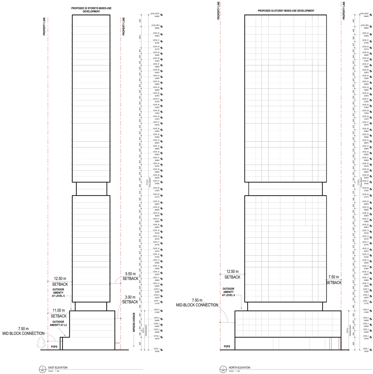
This one gets a Refusal Report to the next meeting of NYCC:
A careful reading of the report will show many issues, the summary outlined below, but wind is a tangible issue here, and one I identified up thread.
A careful reading of the report will show many issues, the summary outlined below, but wind is a tangible issue here, and one I identified up thread.