Yet another tower with very short ceiling heights. Other proposed 68 floor towers are between 217 and 242 metres.
And how many elevators will this 'luxury' condo have? 4 for 700+ units? Perhaps because of the low ceiling heights, some residents are expected to take the stairs (and probably will be forced to, given the waiting time for the elevators). No need to have a fitness facility then ... everyone wins!
 
68 floors at 188m? I get that some levels are hotel which tend to have shorter floor heights but still seems short relative to the amount of floors.

That number may refer to the top of the top inhabited floor without including the mechanical penthouse... as we sometimes get that number from developers before we actually see the documents. I'm hoping they'll be accessible soon!

Yet another tower with very short ceiling heights. Average floor to floor height is 2.75 metres. Five other proposed 68 floor towers are between 217 and 242 metres.

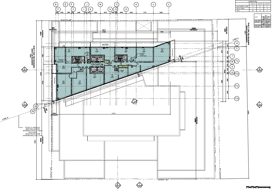
The current regular floor-to-floor height difference in the 49-storey version is 2.850m. We shall see if that changes once we have the new docs!

And how many elevators will this 'luxury' condo have? 4 for 700+ units? Perhaps because of the low ceiling heights, some residents are expected to take the stairs (and probably will be forced to, given the waiting time for the elevators). No need to have a fitness facility then ... everyone wins!

The 49-storey version has four elevators for the hotel portion and six for the condo portion. We shall see if that changes too!

And @Northern Light, the building has a wedge shape above the 20th floor to respond to the helicopter flight path restrictions, so I don't believe that it has been exempted from anything. We still have to wait and see if the latest changes are approved of course...

42
 
Interesting story; I'm bit underwhelmed by the Missoni influence here.

I'm going to have to go back and look at the helicopter flight paths again to see how this one apparently escaped restriction.

I'll bring this render into the thread:

View attachment 600780

And this one of the podium:

View attachment 600779

For the rest, go read the Front Page Story.
\/
The potential height increase would lie right outside the flight path, as seen here:

View attachment 523714

Works kind of like a Massey Tower scenario where the boundary essentially forms the southern limit of the tower.
 
...I was going to say that wedge shape look seems to be flight path inspired.
 


Missoni Sky is a proposed CORE-designed 68-storey tower with 795 units at 225 Jarvis St. It will rise from an eight-storey brick podium housing a 177-suite, five-star boutique hotel on the former site of the Grand Hotel, which was demolished in 2020.

Amexon is taking registrations, a sales office has been completed and Evans said there will be a full sales launch this fall.

There are a few other condos in Amexon’s development pipeline and Evans expects them to be announced this summer.

“For good, well-located, transit-oriented developments, lenders are willing to finance,” Evans said.
 
About a year ago the building on King St East @ Market Lane Park was fitted out as the sales room for this project. The windows were then papered over and we waited.

Today the paper is gone so it looks as though it will be (re)launched! Apologies for poor photo. No changes yet, I think, on website https://www.missonisky.com/

sky.jpg
 
Shocked realtors haven't christened the area with a new name to avoid saying "Moss Park" or "Dundas East". Perhaps 'Jarvisville'?
INFIVILLA refers to this location as "Lake View" amongst their offerings. I think it's actually just Garden District.
I'm very eager for the large parking lot at Mutual/Dundas/Jarvis to bite the dust soon.
 

Back
Top