New renderings are updated in the database! The overall building and townhome storey count went from14 & 4 storeys to 16 & 4 storeys. The building heights increased from 48.77m to 48.92m. The total condominium and townhome unit count increased from 182 & 8 units to 372 & 9 units. The total number of parking spaces proposed is 200 parking spots.

The renderings are taken from the architectural plan via Site Plan Approval!
 
New renderings are updated in the database! The overall building and townhome storey count went from14 & 4 storeys to 16 & 4 storeys. The building heights increased from 48.77m to 48.92m. The total condominium and townhome unit count increased from 182 & 8 units to 372 & 9 units. The total number of parking spaces proposed is 200 parking spots.

The renderings are taken from the architectural plan via Site Plan Approval!
Did they apply for a minor variance?
 
Previous Grmada Holdings approval at OMB:
14-storey 42.5m 48.9% coverage
4.9FSI 20,467m2 residential vs 639m2 retail (97% vs 3%)
101 1-bedroom, 69 2-bedroom, 13 3-bedroom (55.2% vs 37.7% vs 7.1%)
183 total units

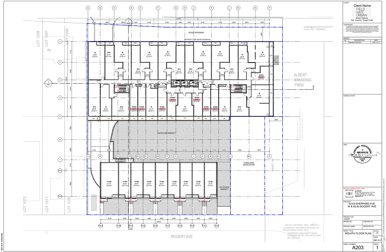
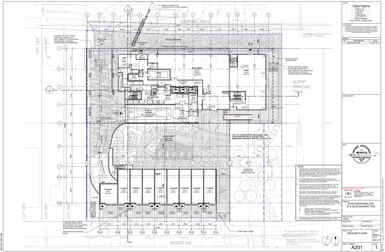
Current - FieldGate Urban
16-storey 48.10m
5.22FSI 22,000m2 residential vs 200m2 retail (99% vs 1%)
285 1-Bedroom, 57 2-bedroom, 39 3-bedroom (74.8% vs 15.0% vs 10.2%)
381 total units

@mods need to update title to: 53 Sheppard West | 48.1m | 16s | FieldGate Urban | IBI Group

source: http://app.toronto.ca/AIC/index.do?folderRsn=H+iF5nMFcP+dl2LdULatyA==


- FieldGate Urban generally kept the same built form that Grmada Holdings Inc got approved at OMB - but added 2-storey to the approved 14-storey 42.5m on Sheppard, increasing it to 16-storey at 48.1m; keeping the 4-storey townhouses on Bogert - this increases the floor area from 21,106m2 to 22,200m2 and density from 4.9FSI to 5.22FSI
View attachment 377136

View attachment 377137

View attachment 377138

View attachment 377139

View attachment 377140

4-storey townhouses along adjacent north-side of Bogert Ave:
View attachment 377141

View attachment 377142

View attachment 377143

- within similar built form, how did FieldGate Urban's 381 units more than double Grmada Holdings' 183 units? Whereas most of Grmada Holdings' unit size were about 650-1100sqft (not including Penthouse), FieldGate Urban split most of these condo unit size in half to 300-800sqft! Some of these 1-bedroom are sub-300sqft Studio micro condo units! 292 sqft, 293 sqft, 298 sqft here! For those who can't afford a 600sqft 1-bedroom condo,.... here you can buy half of it!!!
NOTE: 276 sqft at Urban Capital Property Group's Smart House (215 Queen St West) is the smallest in the City! The Modular Supportive Housing Units at 175 Cummer are 236-253sqft!
- the smaller units likely generate higher per square footage sale price and profit - thus, developers try to make smaller 1 bedroom units VS 2+bedroom Family Units
- FieldGate Urban seems to have partnered with Daniels Corp on this project - Daniels Corp did the initial 3 phases of 5 for Regent Park rebuild
View attachment 377144

- on-site Section 42 parkland dedication is 50 feet lot along Bogert directly west of Albert Standing Park with nothing along Sheppard (City wanted 25' on Bogert and 25' on Sheppard to reduce condo size!)
- this parkland dedication is adjacent to their non-enclosed courtyard between Bogert townhouse and Sheppard condo tower - which would act as Privately Owned Public Space (POPS); underground garage directly underneath - thus, every 40 year this POPS would have to be ripped apart to replace the waterproofing above this section of the underground garage
- NOTE: City of Toronto has a Albert Standing Park Improvement/ReBuild project - Office Park VS Neighbourhood Park,.... this project was put on hold a few months ago - while this Revision was making it's way through City Planning towards Official Submission - thus, I suspect the main reason was to clarify if the on-site Section 42 Parkland Dedication will just be the adjacent 50' along Bogert VS 25' on Bogert and 25' on Sheppard
View attachment 377145
i cant seem to find the Arch set updated on the Source link you sent for the toronto Development application portal

 
i cant seem to find the Arch set updated on the Source link you sent for the toronto Development application portal


- click on "21 252121 NNY 18 SA Under Review 30/12/2021" for the latest Site Plan Application and then click on "Supporting Documentation: >"
 
- click on "21 252121 NNY 18 SA Under Review 30/12/2021" for the latest Site Plan Application and then click on "Supporting Documentation: >"
Thank Sunny, got it. They are pushing the balconies on the east side 1.5m closer to the park from previous submission
,
Capture.PNG
Capture.PNG
 
I have a friend who lives on Beecroft and she sent me this image, i think the building will be taller than what is shown in red. if you see the tan building on the left that's 8 stories. This is now 16 plus mech penthouse. the image really shows how there is nothing west of Beecroft like it for a distance.
Condo.jpeg
 
Last edited:
I have a friend who lives on Beecroft and she sent me this image, i think the building will be taller than what is shown in red. if you see the tan building on the left that's 8 stories. This is now 16 plus mech penthouse. the image really shows how there is nothing east of Beecroft like it for a distance.

Keep in mind the 8-storey tan building is an Office building (Professional Engineers of Ontario) around 40m high - Office floor ceiling height are generally 50% higher than condo-floor ceiling height.
- Here, proposed 16-storey condo is 48.92m - about half the height of the 21-storey Nestle Canada office building on east-side of Beecroft.
- Another way of looking at it is most of the newest McMansion/McSkinnies being built in that neighbourhood are about 9.3m high (10m is max City allowable now), so stack about 5 of them to get the height.

The view of this part of Sheppard Ave West should change prior to this one starting construction:
11-storey 245 Sheppard West is approved at OMB now pre-Building Permit stage
9-storey 270 Sheppard West is approved at OMB now pre-Building Permit stage
4 towers up to 27-storey at 325 Bogert is OMB settlement pending May hearing
 

Back
Top