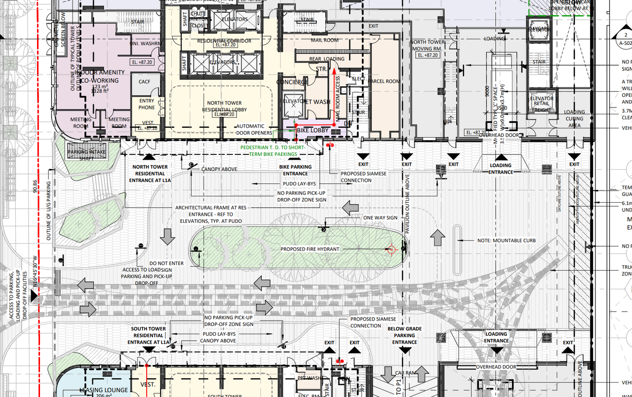
I don't think my words would be quite as harsh, but there is work to be done here for sure. Ground level spends wayyyy too much space for vehicular circulation - specifically providing a massive PUDO for the north tower which could easily just be two layby spaces like they have done for the south tower:

View attachment 653982

I vote to delete that oversized PUDO and expand the soft landscaping areas. Even better, shift the leasing lounge and coworking spaces to be internal to the site overlooking the courtyard with retail along Blue Jays Way.

I don't know if I'd go as far as 'disgusting'..............but it certainly underwhelms.

I think the unfortunate surprise/question mark here is that Oxford is shelling out for HP here.

I don't know why you would pay for one of the City's top firms and then have them generate something DIALOG could have come up with.
I'd go even further than calling it just disgusting, but you'd have to censor all the words I have for this drabbed non-sense.

The PPUDO, is suburban designed stupidity placed in the middle of the downtown core. I mean what in the actual hell is this? Then you have the streetscape is....dreadful sterile.

The towers are embarrassingly bad, especially considering the fact this will be right on the background of the focus point of our skyline.

Normally I wouldnt be this scathing with my assessment, but for where this proposal is located and what is being proposed, this is nothing short of an abomination. As noted above this is not at the fault of HPA, this is fully Oxford being cheap and lacking any sort of a comprehensive vision asides from having $$$ in their face. It's amazing that all these execs can fly around the world to see grandeur, but they come back here and bestow garbage trash designed product here.
 
Reminiscent of the fabulous "Residences of College Park"....😒
Pretty much the sorry and sad copy/paste look they are apparently going for, but funny enough ROCP and it's fake "colonnade" looks better then the trash Oxford has proposed here.

Residences of College Park:

1748289546053.png




Union Park

1748289582040.png
 
...yeah, the first set of towers here shouldn't be inspired by unfortunate PoMo schlock from G+C. >.<
 
I don't think my words would be quite as harsh, but there is work to be done here for sure. Ground level spends wayyyy too much space for vehicular circulation - specifically providing a massive PUDO for the north tower which could easily just be two layby spaces like they have done for the south tower:

View attachment 653982

I vote to delete that oversized PUDO and expand the soft landscaping areas. Even better, shift the leasing lounge and coworking spaces to be internal to the site overlooking the courtyard with retail along Blue Jays Way.
If you open the dictionary of bland, boring, sterile design this is the picture that would show up
Truly embarrassing for the location and prominence when people come see the city
 

Back
Top