Platinum107
Senior Member
I like it overall, but I wish the 142nd Street side was a little less blocky/had more large windows. I understand not having balconies cause traffic noise/pollution but still.
Originally this was the plan; but schedules and budgets and objectives change unfortunately as time goes on. Regardless, I still think these next West Block phases will turn out much better than the images suggest.surprised that they didn't continue the design choices of the other 2 existing buildings.
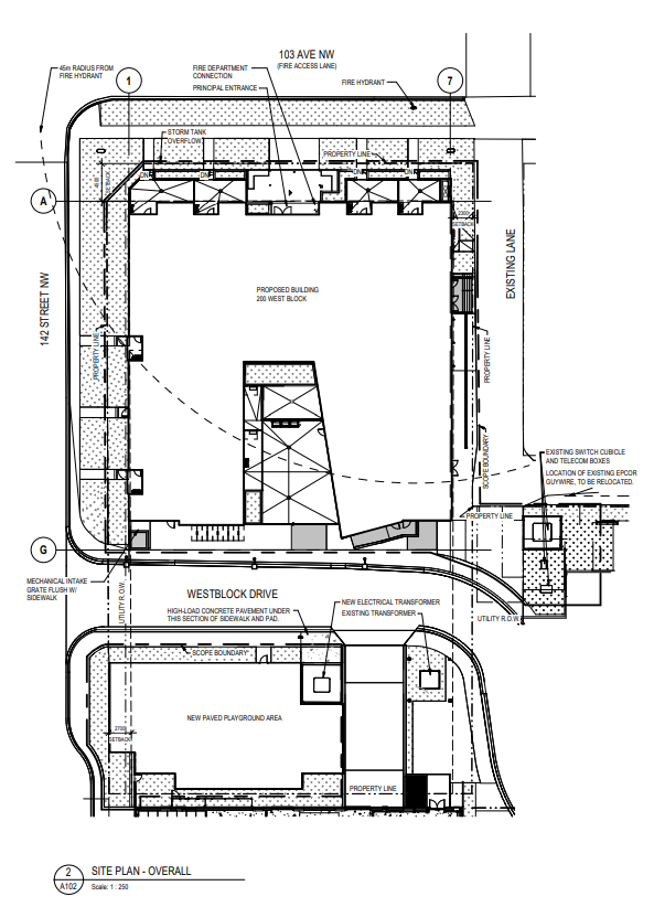
Are these plans public? I cant find them online anywhere?No, it's the small rear parking lot and the area being currently used as the outdoor play space for the day care. I don't think that was a secret, it has always been part of the development plan.
The fourth phase will be the parking lot to the east.