Gronk!
Senior Member
New Leduc interchange drives investment, creates jobs
A new interchange at Queen Elizabeth II (QEII) Highway and 65 Avenue in Leduc will support more than 470 construction jobs and improve access to key cargo hubs.
That will allow better access for the Air Ambulances as well.Courtesy of CTV
![]()
LITERALLY!!!My guess is this will really help our chances of getting a bike share too…
Like calgarys that operates year round and has ebikes…
A stretch of 104 St will be getting similar treatment as well. During the road rehabilitation project this summer, the city is putting in a bike path on the north side, accompanied by a 1.5m sidewalk. On the south side, the existing sidewalk will be replaced. The bike path will be isolated from other bike infrastructure to start with, but hopefully the city will continue to add more paths like this during future rehab projects in the area.Fort Saskatchewan is getting a street redone downtown, and it'll include a pretty significant sidewalk expansion.
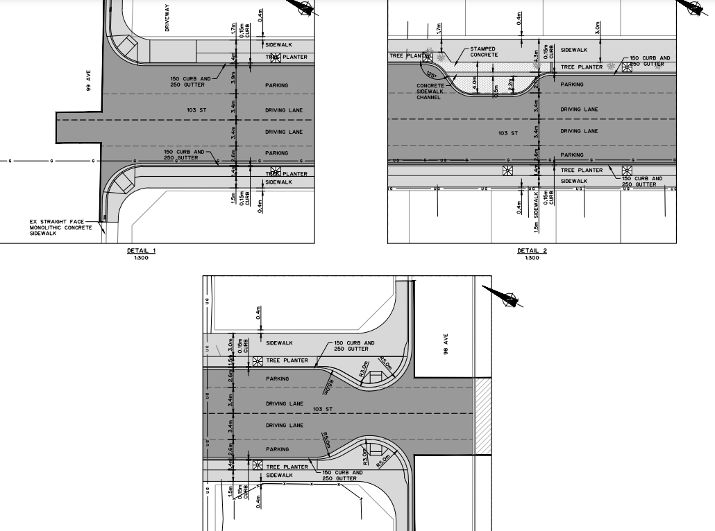
Right now, 103rd street has narrow sidewalks, with some sections missing entirely.
View attachment 392360View attachment 392361View attachment 392362
The new design, which will be constructed this year, widens the sidewalks by 3m (on the east half) and 1.5/1.7m (on the west half, nearest to the green apartment building). On top of that, they're also putting in rows of trees that separate pedestrians and vehicle traffic, like we already see along 100 Ave downtown.
View attachment 392366View attachment 392367
So, the sidewalk should look something like this (but not as fancy, and a bit narrower in parts).
View attachment 392370
Tree removal has begun for the Latta Bridge reconstruction. It appears the construction will begin sometime in the late summer.
He's always so spot on




