JMatt88
Active Member
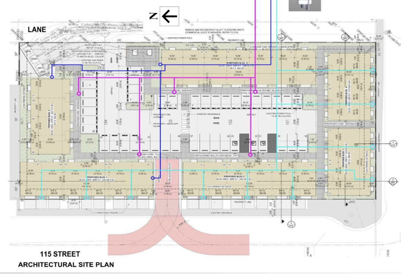
And people wonder why we compare ourselves to Calgary when this is the type of things that get builtThat is awful. There is literally nicer stuff (and that's not saying much) going up in the 'burbs. What a letdown if that goes ahead, tough to believe it's Beljan (is it still them?)
Last edited:




