News   GLOBAL  |  Apr 02, 2020
 11K     0 
News   GLOBAL  |  Apr 01, 2020
 43K     0 
News   GLOBAL  |  Apr 01, 2020
 6.7K     0 
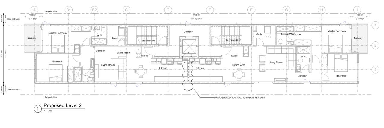
114 letters of objection in this case (+ councillor objection ) - changing of a 4-plex into an 8-plex


The building massing is unchanged - they are splitting the pretty massive units on Levels 2 and 3 into 2 units

Screenshot 2026-04-22 133237.png
 
114 letters of objection in this case (+ councillor objection ) - changing of a 4-plex into an 8-plex


The building massing is unchanged - they are splitting the pretty massive units on Levels 2 and 3 into 2 units

View attachment 731263
Thanks! At least the opponents will feel heard before this gets approved.
Dear lord I hope you're right
No, the success of the multiplex project writ large is going to be on how these things can fit into existing neighbourhoods. It really doesn't matter if folks on UT think they're fine, if you know the multiplex regulations, you know how this one was done and calling this much attention to it is the fastest way to turn everyone and council against the entire thing. This kind of craven horseshit is going to be bad for everyone.

Etobicoke-eightplex-1024x465.png
 
No, the success of the multiplex project writ large is going to be on how these things can fit into existing neighbourhoods. It really doesn't matter if folks on UT think they're fine, if you know the multiplex regulations, you know how this one was done and calling this much attention to it is the fastest way to turn everyone and council against the entire thing. This kind of craven horseshit is going to be bad for everyone.

Etobicoke-eightplex-1024x465.png
Absolutely and to that point, this image below from an article last August about 8-plexes and infill buildings in Edmonton went viral because to normal everyday people this in your backyard is objectionable and completely undesirable.

1776908862266.png
 
114 letters of objection in this case (+ councillor objection ) - changing of a 4-plex into an 8-plex


The building massing is unchanged - they are splitting the pretty massive units on Levels 2 and 3 into 2 units

View attachment 731263
It's hard not to look at that floor plan and think this was always the play. The layout without this addition wall is almost nonsensical - central galley kitchen with equally sized living areas on either side, a bathroom with ensuite bath on each end?

The builders/developers here are making a mockery of the process. Block this from going through, and maintaining community support for future multiplexes will more than offset the loss of four units here.
 
It's hard not to look at that floor plan and think this was always the play. The layout without this addition wall is almost nonsensical - central galley kitchen with equally sized living areas on either side, a bathroom with ensuite bath on each end?

The builders/developers here are making a mockery of the process. Block this from going through, and maintaining community support for future multiplexes will more than offset the loss of four units here.
Precisely.
 
I shared my thoughts on the above when this was posted to the zoning reform thread:

 

Back
Top