rdaner
Senior Member
78 Gladstone. 3units+laneway. I put the address into CofA but didn’t get anything which always happens! What am I doing wrong?
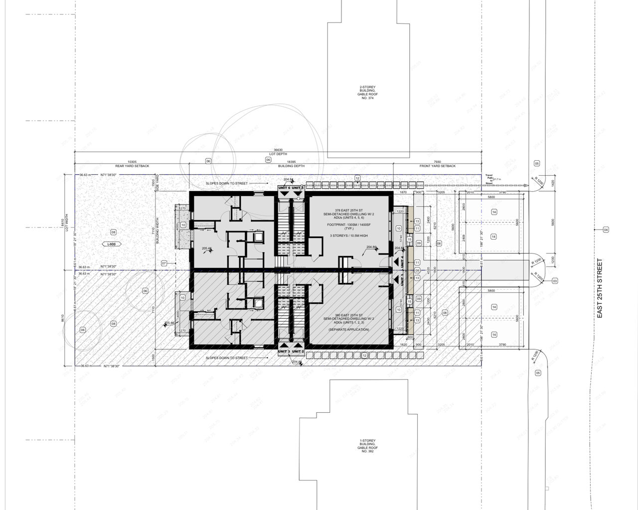
Anddd or was denied.This is for 378 East 25 Street in Hamilton Mountain with additional renderings
View attachment 591701View attachment 591702View attachment 591703View attachment 591704View attachment 591706
Probably just older applications that were approved long ago and files are no longer available. Or as of right apps, so directly went to building permits.I put the address into CofA but didn’t get anything which always happens! What am I doing wrong?
On Oakmount north of Bloor. This is the first example that I have seen of a larger single family house converted into 9 units. Taken 18 September.
Not really. This application was before those policies came into place. Existing house was already a 5 or 7 unit building in this case, but had illegal units.Is it easier, in theory, to build/modify a 9-plex like the one above due to last year's zoning changes?
It's on Lappin west of Dufferin.What's the address of this one?
It's on Lappin west of Dufferin.
It replaced an auto mechanic.Really interesting project. Looks to be two separate lots that were purchased (one of which was, , with two separate multi-plex applications made. A few details
-Triplex on the main building
-Two-storey laneway building
-8 Suites altogether
-Application to CoA October 2023, decision by December 2023, first units had leases signed July, 2024.
This strikes me as really fast to get 8 rental units on the market.
I know that the next 'frontier' of zoning reform is small apartments on residential streets. But isn't this already, in effect, permitted? Based on this project it looks like someone could buy up any two attached semis and build up to 8 units. Could this be done with 3 adjoining properties? 4? Etc etc
The fact that from application to leases signed was only 9 months gives me cautious optimism




